- Woonoppervlakte
- Circa 165 m²
- Perceeloppervlakte
- Circa 284 m²
- Bouwjaar
- Gebouwd in 1977
- Aantal kamers
- 6 kamers (5 slaapkamers)
ROYALE EN UITSTEKEND ONDERHOUDEN 2-ONDER-1-KAPWONING MET GARAGE
In een geliefde en rustige wijk mogen wij deze ruime 2-onder-1-kapwoning met garage aanbieden, met een woonoppervlak van maar liefst circa 165 m².
Een ideale gezinswoning met volop leefruimte, vijf slaapkamers (voorheen zes), een luxe badkamer en op de tweede verdieping zijn de voorbereidingen voor een tweede badkamer reeds getroffen.
De woning is tot in de puntjes verzorgd en beschikt over een moderne keuken, een fijne en zonnige tuin met veel privacy en praktische details zoals betonnen verdiepingsvloeren (BG en 1e verdieping), deels kunststof kozijnen, 16 zonnepanelen, energielabel A én parkeergelegenheid op eigen terrein.
Stel je voor: thuiskomen in een lichte woonkamer met een open keuken, perfect voor gezellige momenten met familie en vrienden. De ligging maakt het plaatje compleet: op loopafstand van Centrumwaard en op fietsafstand van het overdekte winkelcentrum Middenwaard met een ruim winkelaanbod en gezellige horeca. Ook scholen, kinderopvang en sportvoorzieningen zijn dichtbij. De uitvalswegen richting Alkmaar, Amsterdam en Hoorn zijn uitstekend bereikbaar.
Wanneer in deze buurt een woning vrijkomt, is het zaak om snel te zijn. Nieuwsgierig?
Bekijk de EXCLUSIEVE EIGEN SITE VAN DE WONING (vansantenlaan80.nl) voor alle details van de woning en de omgeving via de website van EV Wonen Makelaardij.
BEZICHTIGING: Stuur een verzoek via Funda of de website van EV Wonen Makelaardij. Wij leiden je met plezier rond!
BEGANE GROND:
Je stapt binnen in de hal met vernieuwde meterkast, moderne toiletruimte met wandcloset en fonteintje, en de trap naar boven. De gehele beneden verdieping is voorzien van vloerverwarming. Vanuit de hal loop je de royale, lichte woonkamer in.
De straatgerichte woonkamer heeft een fraaie tegelvloer met vloerverwarming en een hoog, glad afgewerkt plafond. Grote ramen aan zowel de voor- als achterzijde zorgen voor een fijne lichtinval en een ruimtelijk gevoel.
De open keuken in U-opstelling is meer dan compleet en uitgerust met hoogwaardige apparatuur zoals een Siemons 5-zone inductieplaat en Gaggenau elektrische grill, Siemens-vaatwasser, dubbele wasbak met onderboiler, koelkast, 3-laden vriezer, hete lucht oven en conventionele oven en combimagnetron. Het werkblad is van massief Corian en biedt veel werkruimte en door de vele kasten zijn er veel opbergmogelijkheden – koken is hier echt een feest.
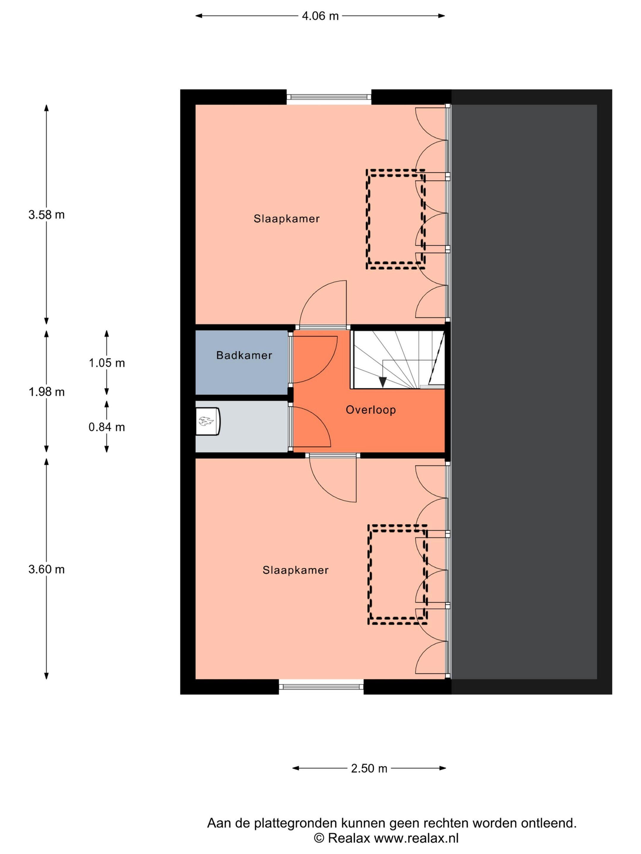
1E VERDIEPING:
Op de eerste verdieping vind je drie royale slaapkamers (voorheen vier), afgewerkt met laminaatvloeren en deels behangen wanden. Door de breedte van de woning voelen alle slaapkamers ruim aan.
De moderne badkamer is voorzien van een ligbad met douche, een wastafelmeubel, tweede toilet en designradiator. Dankzij de mechanische ventilatie is deze ruimte altijd goed te luchten.
2E VERDIEPING:
Via een vaste trap bereik je de tweede verdieping. Hier vind je de voorzolder met een aparte kast voor de cv-installatie, mechanische ventilatie en de omvormer voor de zonnepanelen. De aansluitingen voor een tweede badkamer zijn al aanwezig – aan de nieuwe eigenaar om deze ruimte naar eigen wens in te richten.
Verder zijn er op deze verdieping twee zeer lichte en ruime slaapkamers met kunststof kozijnen. De kamers voelen ruim aan en bieden veel flexibiliteit in gebruik.
TUIN:
De voortuin op het westen is fraai aangelegd met sierbestrating en groene plantvakken, en geeft de woning een verzorgde uitstraling. De zonnige achtertuin op het oosten (circa 12,5 meter diep en bijna 10 meter breed) biedt veel privacy en zon. Onder de veranda (ca. 2 x 3,5 m) kun je het hele jaar door heerlijk zitten – ideaal ook als je droog naar de bijkeuken of garage wilt lopen.
GARAGE:
De garage met bijkeuken (circa 8 meter diep en 2,9 meter breed) is aan de voorzijde bereikbaar via openslaande deuren en aan de achterzijde via een loopdeur. In het achterste deel vind je de aansluitingen voor de wasmachine en droger en extra bergruimte.
KENMERKEN & INSTALLATIES:
- Grondoppervlak: 284 m²
- Gebruiksoppervlakte wonen: ca. 165 m²
- Bruto inhoud woning: ca. 635 m³
- Betonnen vloeren op begane grond en 1e verdieping
- 16 zonnepanelen
- CV-ketel Remeha, bouwjaar 2005
- Moderne meterkast
LIGGING:
De woning ligt in een rustige en ruim opgezette wijk, waar veel groen en privacy samenkomen. Hier geniet je van de voordelen van een centrale ligging: scholen, supermarkten, winkels, openbaar vervoer en recreatie zijn allemaal vlakbij. Dankzij het bestemmingsverkeer is het er bovendien veilig en kindvriendelijk. En voor wie werkt in Alkmaar of Amsterdam: de uitvalswegen zijn uitstekend bereikbaar.
INTERESSE?
Neem contact op via Funda of de website van EV Wonen Makelaardij en plan een bezichtiging. Wij laten je deze goed onderhouden en instapklare woning graag zien!
Overdracht
- Vraagprijs
- € 525.000 k.k.
- Status
- Verkocht
Bouw
- Object type
- Eengezinswoning, 2-onder-1-kapwoning
- Soort bouw
- Bestaande bouw
- Bouwjaar
- 1977
- Soort dak
- Zadeldak bedekt met pannen
Oppervlakte en inhoud
- Woonoppervlakte
- 165 m²
- Perceeloppervlakte
- 284 m²
- Inhoud
- 635 m³
- Gebouwgeb. buitenruimte
- 7 m²
Indeling
- Aantal kamers
- 6 kamers (5 slaapkamers)
- Aantal badkamers
- 2 badkamers en 1 apart toilet
- Badkamervoorzieningen
- Douche, ligbad, toilet, en wastafelmeubel
- Aantal woonlagen
- 3 woonlagen
- Voorzieningen
- Buitenzonwering, mechanische ventilatie, TV kabel, en zonnepanelen
Energie
- Energielabel
- A
- Energielabel registratie
- 28-03-2025
- Isolatie
- Dakisolatie, dubbel glas, muurisolatie, vloerisolatie en volledig geïsoleerd
- Verwarming
- Cv-ketel en gedeeltelijke vloerverwarming
- Warm water
- Cv-ketel
- Cv ketel
- Remeha (2005, eigendom)
Buitenruimte
- Ligging
- Aan rustige weg en in woonwijk
- Tuin
- Achtertuin en voortuin
- Afmetingen achtertuin
- 125 m² (12,50 meter diep en 9,96 meter breed)
- ligging tuin
- Gelegen op het oosten
Garage
- Soort garage
- Aangebouwde stenen garage
- Capaciteit
- 1 auto
- Voorzieningen
- Elektra en stromend stromend water
Parkeergelegenheid
- Soort parkeergelegenheid
- Op eigen terrein
Actueel energieverbruik
Energielabel deze woning
Energielabel A
Publicatie energielabel: 28-03-2025
Stroomverbruik per jaar
van Santenlaan 80, Heerhugowaard
Gasverbruik per jaar
van Santenlaan 80, Heerhugowaard
Indicatie hypotheeklasten
Eigen inleg:
Spaargeld / overwaarde
Rente:
Laagste 10-jaars rente
Laagste 10-jaars rente
2,98% - Centraal Beheer Groen... - NHG
3,25% - Centraal Beheer Groen... - 80%
Laagste 20-jaars rente
3,29% - Centraal Beheer Groen... - NHG
3,52% - Centraal Beheer Groen... - 80%
Laagste 30-jaars rente
3,41% - Centraal Beheer Groen... - NHG
3,74% - Centraal Beheer Groen... - 80%
Hypotheek:
Bruto maandlasten: € 0 p/m
Netto maandlasten: € 0 p/m
Hoe berekenen we dit?
Het rentepercentage is gebaseerd op de laagste 10 jaars vaste rente voor één hypotheekdeel. De vermelde rente (3.25% zonder NHG) is gecontroleerd op 06-01-2026. Deze berekening is gebaseerd op een annuïteitenhypotheek die volledig wordt afgelost, waarbij de maandlasten gedurende de gehele looptijd gelijk blijven. De werkelijke rente en netto maandlasten kunnen variëren, afhankelijk van uw persoonlijke situatie en de hypotheekverstrekker. Raadpleeg een financieel adviseur voor een nauwkeurige berekening en advies. Aan deze berekening kunnen geen rechten worden ontleend; het dient enkel als indicatie.
Documentatie
Kadastrale kaart
Leefomgeving
BAG uittreksel
Plattegronden PDF
Brochure
Lijst van zaken
Vragenlijst
Bezoek onze website
Bezichtiging
Bod uitbrengen
Waardebepaling
Zoekopdracht
Alles downloaden
Op de kaart
Inwoners in Heerhugowaard
Cijfers voor postcodegebied 1701
- Totaal aantal inwoners
- 59045 inwoners
- Mannen
- 51%
- Vrouwen
- 49%
Inwoners in Heerhugowaard
Cijfers voor postcodegebied 1701
- tot 15 jaar
- 17%
- 15 tot 25 jaar
- 13%
- 25 tot 35 jaar
- 25%
- 45 tot 65 jaar
- 27%
- 65 en ouder
- 18%
Huishoudens in Heerhugowaard
Cijfers voor postcodegebied 1701
- Eenpersoons zonder kinderen
- 31%
- Meerpersoons zonder kinderen
- 34%
- Huishoudens zonder kinderen
- 65%
Huishoudens in Heerhugowaard
Cijfers voor postcodegebied 1701
- Huishoudens met één kind
- 7%
- Huishoudens met meerdere kinderen
- 27%
- Huishoudens met kinderen
- 34%
Woningen in Heerhugowaard
Cijfers voor postcodegebied 1701
- Woningen voor 1945
- 3%
- Woningen tussen 1945 en 1965
- 10%
- Woningen tussen 1965 en 1975
- 60%
- Woningen tussen 1975 en 1985
- 8%
- Woningen tussen 1985 en 1995
- 5%
Woningen in Heerhugowaard
Cijfers voor postcodegebied 1701
- Woningen tussen 1995 en 2005
- 4%
- Woningen tussen 2005 en 2015
- 5%
- Woningen na 2015
- 5%
- Huurwoningen
- 20%
- Koopwoningen
- 80%
Overige in Heerhugowaard
Cijfers voor postcodegebied 1701
- Gemiddelde WOZ waarde
- € 245.000,-
- Personen onder de 65 met uitkering
- 8%
Overige in Heerhugowaard
Cijfers voor postcodegebied 1701
- Adressen per km²
- 1459
- Stedelijkheid (schaal 1 op 5)
- 60%
Korte feiten over Heerhugowaard
Heerhugowaard is een plaats in de gemeente Dijk en Waard, in de regio West-Friesland in de Nederlandse provincie Noord-Holland. Heerhugowaard hoort historisch gezien niet bij Kennemerland maar valt wel onder de gemeentelijke samenwerkingsregio Kennemerland via Noord-Kennemerland.
Wie is EV Wonen Makelaardij?
Het verlaten van je oude woning of het ontdekken van je nieuwe droomhuis is een ongelooflijk opwindend proces voor de meeste van onze klanten. Er zijn zoveel besluiten te nemen en talloze factoren die invloed hebben op het behalen van het best mogelijke resultaat voor jou. Bovendien is de vraag naar woningen sterk gestegen en hebben de prijzen recordhoogtes bereikt.
In deze dynamische en vaak onvoorspelbare markt zijn wij de toonaangevende verkoopmakelaar in de regio, goed geïnformeerd over de lokale huizenmarkt en de verkoopmogelijkheden van jouw woning.
We hebben voor veel klanten uitstekende verkoop- of aankoopresultaten behaald. Wij volgen geen vaste methoden, omdat we geloven dat elke woning en verkoper uniek is. Bij ons kun je rekenen op een persoonlijke benadering. Ons succesgeheim is dat we alledaagse dingen buitengewoon goed uitvoeren.
Een huis met succes verkopen is geen eenvoudige taak. EV Wonen Makelaardij biedt:
– een solide verkoopstrategie;
– een eersteklas presentatie met altijd een toppositie op Funda;
– een gedreven en gecertificeerde Register Makelaar/Taxateur;
– proactief gebruik van sociale media;
– en een flinke portie lokale marktkennis.
Onze aanpak heeft de afgelopen jaren geleid tot een zeer hoge Funda klantbeoordeling van 9,5! Dit betekent dat klanten met een goed verkoopproces uitstekende verkoopresultaten hebben behaald.
We besteden veel aandacht aan jouw persoonlijke situatie en de specifieke kenmerken van jouw woning. Dit, in combinatie met een goede communicatie, garandeert een succesvol verkoop- of aankooptraject. Benieuwd wat we voor jou kunnen doen? We komen graag vrijblijvend langs voor advies op maat.
Naast Heerhugowaard zijn we ook actief als makelaar in Alkmaar, Oterleek, Langedijk, Hensbroek, Obdam en omgeving.
Wij kunnen je op een unieke en persoonlijke manier volledig ontzorgen als verkoopmakelaar of aankoopmakelaar bij de verkoop of aankoop van jouw woning.
Nieuwste reviews
-
Ter Braaklaan 36
Veel persoonlijk contact met de makelaar gehad. We wensten een hele snelle doorlooptijd, en daarom was veel heel strak gepland. Waarbij snel...
-
Frida Katzland 10
Alles verliep ver boven verwachting goed, soepel en professioneel. Van begin tot het einde fantastisch geregeld!
-
leo en corrie groot
Wat een geweldig team , staat er voor je klaar bij EV wonen , ze zijn kundig en goed op de hoogte , van de financiële afhandeling ,, en ze w...